宇都宮市清原台 売アパート
【価格】成約済
| 利回り | 10% | 住所 | 宇都宮市清原台1丁目 |
|---|---|---|---|
| 物件種目 | 1棟売アパート | 管理費等 | ー |
| 修繕積立金 | ー | 借地期間・ 地代(月額) |
ー |
| 権利金 | ー | 敷金または 保証金 |
ー |
| 維持管理費 | ー | その他一時金 | ー |

★☆ 加賀野のおすすめポイント ☆★
・築7年築浅物件!
・年間想定賃料7,788,000円
・現在満室稼働中!
・シャッター付ガレージ有
・想定利回り10.6%
シャッター付ガレージを賃貸するのもおすすめです♪
お気軽にお問合せ下さい
・築7年築浅物件!
・年間想定賃料7,788,000円
・現在満室稼働中!
・シャッター付ガレージ有
・想定利回り10.6%
シャッター付ガレージを賃貸するのもおすすめです♪
お気軽にお問合せ下さい
-

エントランス
-

外観
-

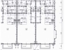
間取り
| 土地面積 | 826.82㎡ | 坪数 | 250.11坪 |
|---|---|---|---|
| 最適用途 | ー | 私道負担面積 | 無 |
| 土地権利 | 所有権 | 都市計画 | 市街化区域 |
| 用途地域 | 第1種中高層地域 | 地勢 | 平坦 |
| 建ぺい率 | 70% | 容積率 | 200% |
| 接道状況 | 200% | 地目 | 宅地 |
| 国土法届出 | ー | セットバック | |
| 特記事項 | |||
| 設備 | LPガス 公営上水 公営下水 | ||
| 備考 | |||
| 建物面積 | 523.34㎡ | 建物構造 | 木造瓦葺2階建て |
|---|---|---|---|
| 築年月 | 平成18年3月 | 建物名 | Nice MOA |
| 階建/階 | 2階建て | 駐車場 | 17台 |
| 都市計画 | 市街化区域 | 私道負担面積 | 無 |
| 建ぺい率 | 70% | 地目 | 宅地 |
| 総戸数 | 18戸 | 特記事項 | |
| 設備 | |||
| 備考 | |||
